为切实增强规划的科学性、合理性、可行性,现依法将以下10个建设项目设计方案总平面图予以公示,广泛征求公众意见。
1.固阳县天隆酒店扩建项目
2.固阳县顺雨景苑住宅小区(原顺雨佳苑)变更项目
3.阳光锦城E区居住小区变更项目
4.固阳县殡仪馆骨灰堂公益性公墓建设变更项目
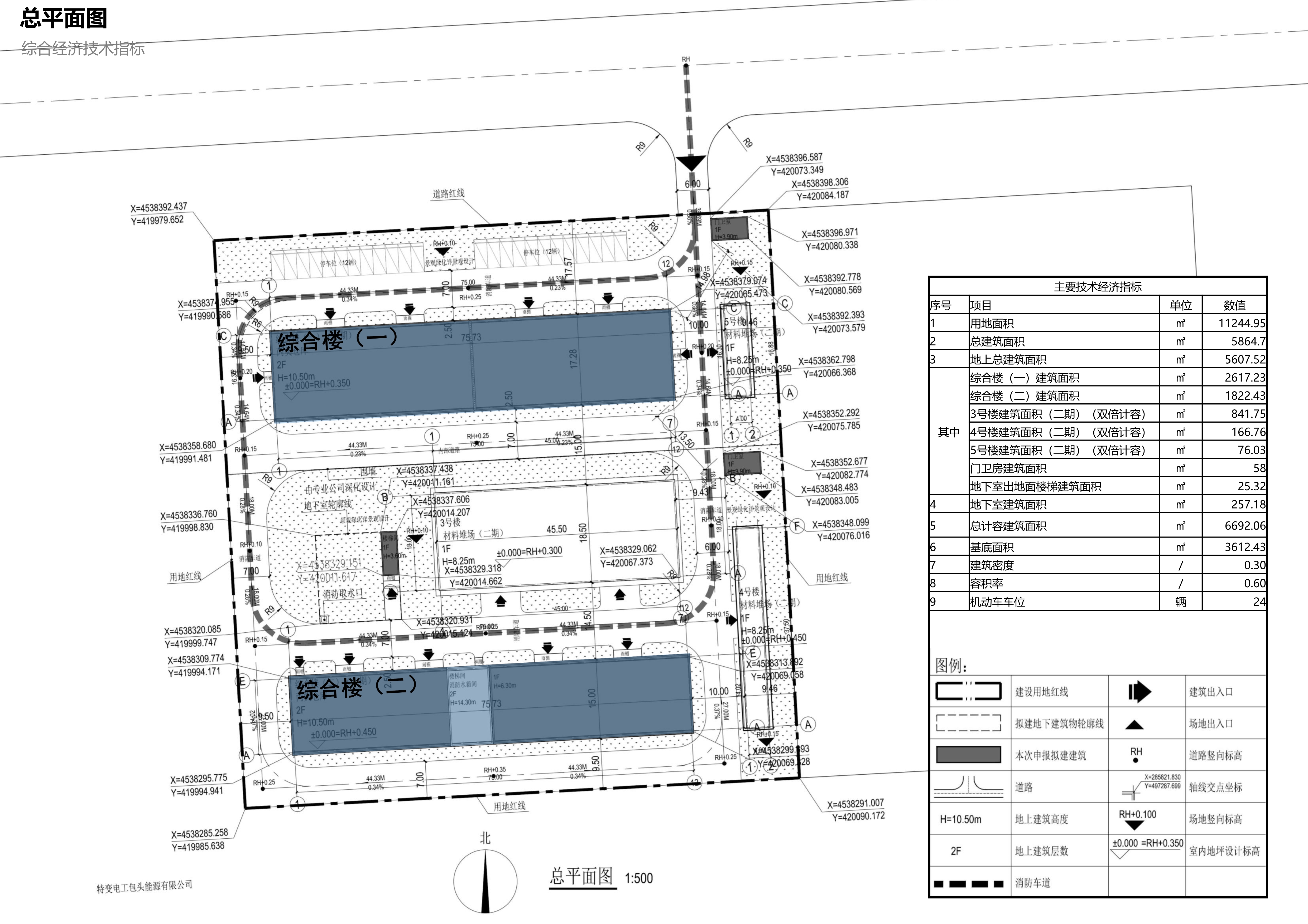
5.包头满都拉电业有限责任公司固阳金山配网项目
6.内蒙古大全新材料有限公司(一期)年产15万吨工业硅项目
7.东方日升源网荷储一体化10GW拉晶项目
8.固阳县7.5万吨年再生硅提纯循环利用项目
9.固阳中航10GWh锂电池生产项目一期2GWh生产项目
10.包头钢铁冶金开发区金山产业园特勤消防站建设项目
公示时间:2023年11月10日---2023年11月17日
有关单位或个人对建设项目有任何意见或建议的,可在公示期间通过以下联系方式向固阳县自然资源局反映。
联系电话:8116661 联系人:刘星宇
电子邮箱:gyghzx@163.com
附图:
1.固阳县天隆酒店扩建项目总平面图
2.固阳县顺雨景苑住宅小区(原顺雨佳苑)变更项目总平面图
3.阳光锦城E区居住小区变更项目总平面图
4.固阳县殡仪馆骨灰堂公益性公墓建设变更项目总平面图
5.包头满都拉电业有限责任公司固阳金山配网项目总平面图
6.内蒙古大全新材料有限公司(一期)年产15万吨工业硅项目总平面图
7.东方日升源网荷储一体化10GW拉晶项目总平面图
8.固阳县7.5万吨年再生硅提纯循环利用项目总平面图
9.固阳中航10GWh锂电池生产项目一期2GWh生产项目总平面图
10.包头钢铁冶金开发区金山产业园特勤消防站建设项目总平面图
固阳县自然资源局
2023年11月10日











