为切实增强规划的科学性、合理性、可行性,现依法将以下5个建设项目设计方案总平面图予以公示,广泛征求公众意见。
1.固阳县金山悦府住宅小区(一期)
2.内蒙古欣美环保科技有限公司年处理12万吨电解铝废渣综合利用项目
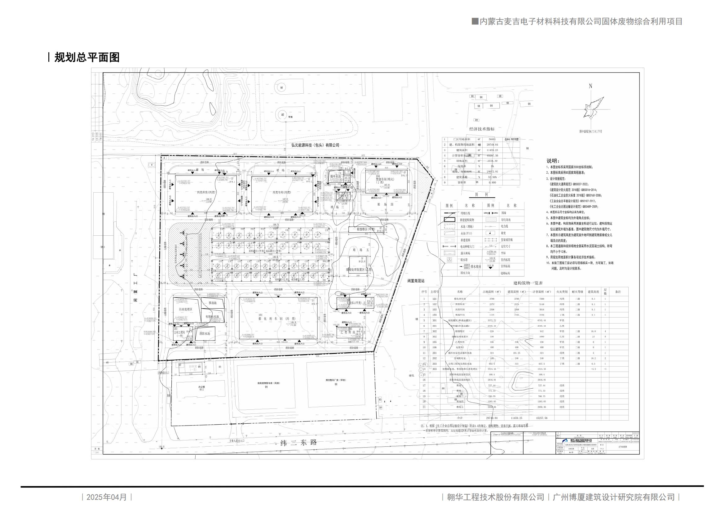
3.内蒙古麦吉电子材料科技有限公司固体废物综合利用项目
4.包头金山经济开发区基础设施(加油站)建设项目
5.内蒙古富美新材料有限公司危险化学品仓储项目
公示时间:2025年5月29日---2025年6月9日
有关单位或个人对建设项目有任何意见或建议的,可在公示期间通过以下联系方式向固阳县自然资源局反映。
联系电话:8116661 联系人:刘星宇
电子邮箱:gyghzx@163.com
附图:
1.固阳县金山悦府住宅小区(一期)项目总平面图

2.内蒙古欣美环保科技有限公司年处理12万吨电解铝废渣综合利用项目总平面图

3.内蒙古麦吉电子材料科技有限公司固体废物综合利用项目总平面图

4.包头金山经济开发区基础设施(加油站)建设项目总平面图

5.内蒙古富美新材料有限公司危险化学品仓储项目总平面图

固阳县自然资源局
2025年5月29日